18 Fotos und Anhänge ansehen
Bernd Geib Immobilien
Bahnhofstrasse 6, 55218 Ingelheim am Rhein
Angelika Walter

Bürokauffrau

Teilen

Front

EG Zimmer

EG Bad mit Dusche

EG Bad

OG Zimmer

OG Küche mit Einbauküche

OG Tageslichtbad mit Wanne

OG Wintergarten

DG Zimmer

DG Küche

OG Zimmer

DG Bad

DG Tageslichtbad mit Dusche

DG Zimmer

DG Zimmer

Treppenhaus

Rückseite

1457 -Energieausweis

1457 Aufwendig Saniert -2 Familienhaus in Idar-Oberstein- für Großfamilien geeignet

Eckdaten

  • Art Mehrfamilienhaus
  • Lage 55743 Idar-Obestein
  • Kaufpreis 265.000,00
  • Wohnfläche ca. 145
  • Grundstück ca. 135
  • Zimmer 5
  • Baujahr 1913
  • Nutzfläche ca. 20
  • Heizungsart Öl-Heizung
  • Einbauküche ja
  • Gäste-WC nein
  • Vermietet nein
  • Bezugstermin nach Vereinbarung
  • Bodenbelag Laminat Vinyl Dielen
  • Ausstattung des Bades Badewanne Dusche Fenster
  • Immobilien-ID 138080063
  • Provision 4,0 % inkl. MwSt.

Immobilie

Das modernisierte Zweifamilienhaus wurde aufwändig saniert. Die Immobilie befindet sich im beliebten Stadtteil Idar, nahe Zentrum mit guten Verbindungen und Einkaufsmöglichkeiten.
Die Sanierungsmaßnahmen lassen keine Wünsche offen. (Neue Fenstern, neue Heizung, sowie neue Strom- und Wasserleitungen). Der Wintergarten wurde neu angebaut und die Böden wurden aufbereitet.
Die Wohnung im Erdgeschoss (ca. 28 m²) besteht aus einem Bad mit Dusche, einem Zimmer und
einer Wohnküche.
Die Wohnung im 1 OG [ca. 68 m²) hat ein Tageslichtbad mit Wanne, zwei Zimmer, eine Küche mit Einbauküche, eine Abstellkammer
und einen Wintergarten.
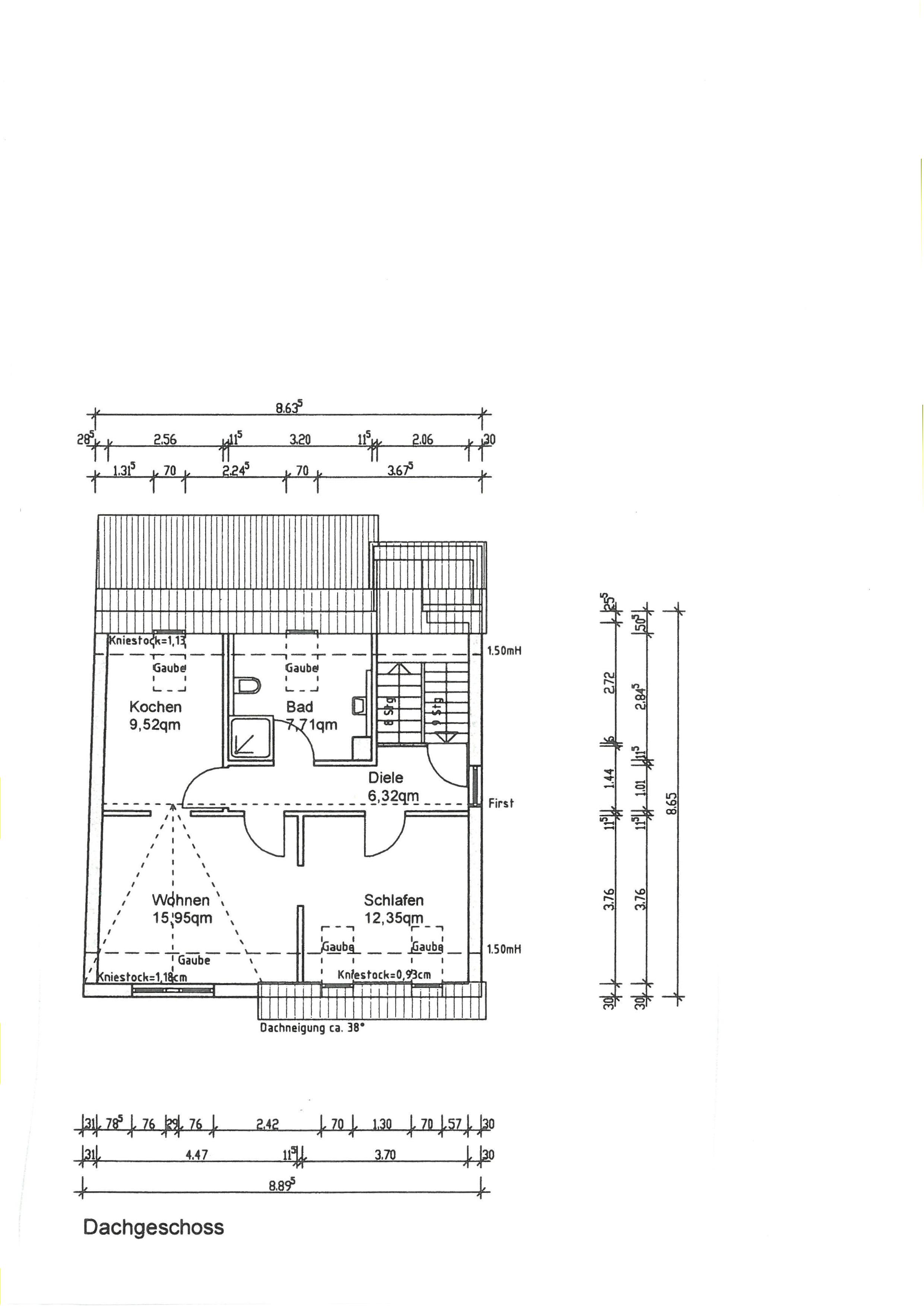
Die Wohnung im Dachgeschoss ( ca. 49 m²) hat ein Tageslichtbad mit Dusche, eine Küche und zwei Zimmer.
Der gemeinsame Waschraum und der Heizungsraum befinden sich im Erdgeschoss.
Das Haus ist in Top zustand und der Preis ist unschlagbar !

Lage

Idar-Oberstein ist eine verbandsfreie und große kreisangehörige Stadt im Landkreis Birkenfeld in Rheinland-Pfalz. Die Edelstein- und Garnisonsstadt ist mit 30.170 Einwohnern die bevölkerungsreichste Kommune des Landkreises und ein Mittelzentrum.
Idar-Oberstein liegt an der oberen Nahe zwischen dem Hunsrück im Norden und dem Oberen Nahebergland im Süden. Größere Städte in der Umgebung sind Trier (ca. 60 Kilometer westlich), Bad Kreuznach (ca. 50 Kilometer nordöstlich) und Kaiserslautern (ca. 55 Kilometer südöstlich). Die Stadt liegt am Rand des Nationalparks Hunsrück-Hochwald. Die Wasserversorgung bezieht die Stadt aus der Steinbachtalsperre.
(Wikipedia)

Ausstattung

2016 - 2025 komplette Modernisierung des Hauses
3fach verglaste weiße Kunststofffenster
Viessmann Ölheizung 2016
3 x 1000 l Öltank
Wasserleitung Neu
Stromleitungen Neu
Neue Böden
Innendämmung
Fassade Neu
Bäder Neu

Vermietet Gäste-WC Balkon vorhanden Terrasse vorhanden Wintergarten vorhanden Einbauküche Rollladen vorhanden

Sonstiges

Bei Erstkontakt ist aus datenschutzrechtlichen Gründen
keine telefonische Auskunft möglich. Bitte stellen Sie Ihre Anfrage über das Internet. Vielen Dank für Ihr Verständnis.

Geldwäsche:
Bernd Geib Immobilie ist gemäß §§1,2 Abs. 1 Nr. 10,4 Abs.3 Geldwäschegesetz ( GWG) dazu verpflichtet, vor Begründung einer Geschäftsbeziehung, die Identität des Vertragspartners gemäß der Ausweisdaten festzustellen, zu Überprüfung und die Kopien 5 Jahre aufzubewahren.

Objektnummer: 1457

Die von uns gemachten Informationen beruhen auf Angaben des Verkäufers bzw. der Verkäuferin. Für die Richtigkeit und Vollständigkeit der Angaben kann keine Gewähr bzw. Haftung übernommen werden. Ein Zwischenverkauf und Irrtümer sind vorbehalten. Wir weisen auf unsere Allgemeinen Geschäftsbedingungen hin. Durch weitere Inanspruchnahme unserer Leistungen erklären Sie die Kenntnis und Ihr Einverständnis.

Wohnflächenberechnung nach DIN 277

Energieausweisangaben

A+
A
B
C
D
E
F
G
H
  • Enerigeausweistyp Bedarfsausweis
  • Energiekennwert 116 KWh(m²*a)
  • Energieeffizienzklasse D
  • Energie mit Warmwasser nein
  • Energieausweis erstellt am 07.10.2025
  • Energieausweis gültig bis 06.10.2035
  • Heizungsart Öl-Heizung
  • Befeuerung / Energieträger Öl

Grundrisse

Wie können wir Ihnen behilflich sein?

Herzlichen Dank für Ihre Anfrage.

Wir werden diese so schnell wie möglich bearbeiten.

Wie können wir Ihnen behilflich sein?
* Pflichtfeld